Skip to content

Market Inn Truro

Apply for this Pub

Market Inn Truro

Lemon Quay, Truro, TR1 2LL Pub Code: 0091670101

Pub Code: 0091670101

Just Add Talent

Ingoing Costs: £4,000

Estimated On Target Earnings: £50,591

Apply for this Pub

The Market Inn is available on our Management Agreement, Just Add Talent. It combines our tried-and-tested pub concept with industry-leading training and support for you and your team. Click here for more information on Just Add Talent.

This is your opportunity to run a ready-made pub with no utilities, stock, rent or maintenance costs. We also supply ready-to-go till, stock ordering and health & safety systems. You can rest assured knowing that we do the detail, so you can Think Bigger.

If you’ve got the talent to manage a team, deliver great service, and know your local community, this is your chance to build a successful pub business.

So, what would you do with The Market Inn to drive forward our pub concept?

About the pub:

The Market Inn brings people together over premium drinks and live events in stylish surroundings where energy builds from day to night.  A full refurbishment is planned to help you drive trade.

Located in the town of Truro, close to Lemon Quay and Truro Theatre. The pub is surrounded by shops and year-round tourist footfall. This vibrant Cathedral city draws shoppers, office workers and visitors by day and a younger crowd in the evening.

The Offer:

You can drive trade through strong selection of entertainment catered to customer demand.

We’re also really interested to hear your ideas on how to drive trade.

Attitude is more valuable than experience. If you’ve got the following, we’d love to hear from you.

  • If you’re enthusiastic and you have what it takes to deliver great retail standards. 
  • You love hospitality and are great with customers. 
  • Bring creativity to build a year-round calendar of events that keeps customers coming back. 
  • You know how to a create a vibrant, contemporary pub that stands out from the crowd to keep trade flowing all week.

If this sounds like the incredible pub opportunity you’ve been waiting for, apply today and tell us what you can bring to this pub’s next chapter… 

 

  • Just Add Talent

  • Outdoor Trade

  • Refurbishment Planned

  • Private Accommodation

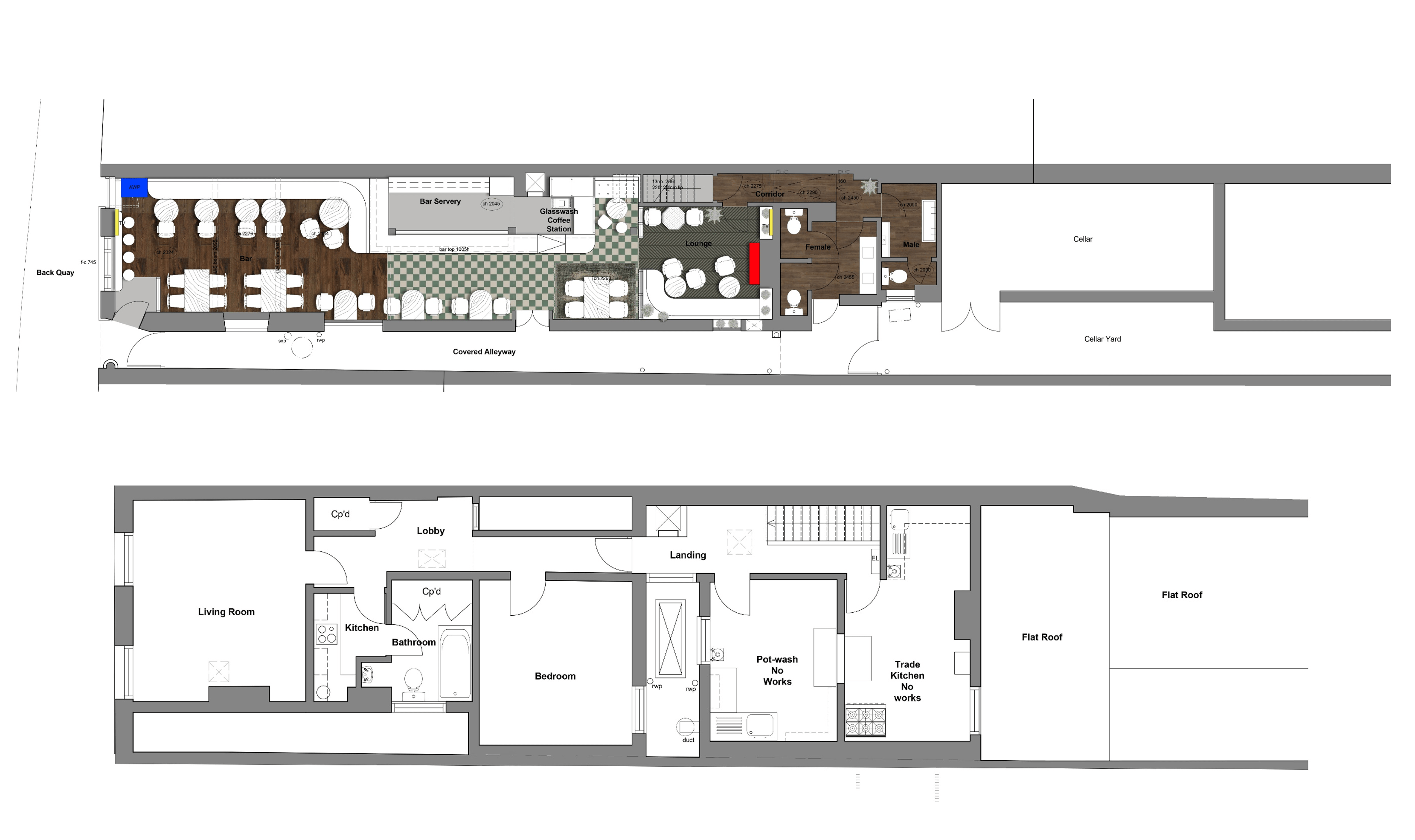
Trading Area & Facilities

The Market Inn will be undergoing a refurbishment which will cover the interior and exterior of the pub.

A full list of works and pub floor plan can be found in the ‘refurbishment details’ in the downloads.

The pub’s trading area and facilities post-refurbishment will be:

  • Main trading area with bar
  • 48 internal covers
  • 60 external covers
  • HEINEKEN SmartDispense®
  • Street-side seating terrace

Applicants should be aware that all refurbishments are subject to final board approval which will be determined as part of the leasing process. 

Private Accommodation

Private accommodation consists of 1 bedroom, lounge, kitchen and bathroom.

Pub Financials Icon

Estimated On Target Earnings

£50,591

Ingoing Costs
£4,000
Estimated Annual Turnover
£407,033
The above figures are provided as a guide only and will be finalised as part of the commercial agreement.

All figures quoted are exclusive of VAT

Location:

Lemon Quay, Truro, TR1 2LL

Google map location image of Market Inn Truro
[]

Blue map location pin Selected pub

Dark blue map location pinOther pubs

South West, England events

Join us in your region