Skip to content

Greyhound Inn Bridgwater

Apply for this Pub

Greyhound Inn Bridgwater

1, Lime Street, Bridgwater, TA5 1QR Pub Code: 2300800101

Pub Code: 2300800101

Investment Tenancy

Est. Annual Turnover: £307,057

Annual Rent: £20,063

Apply for this Pub

A refurbishment project of around £105,000 is planned to transform The Greyhound into  a vibrant community local. The pub will not only provide a cosy warm and welcoming environment for locals to enjoy but will also offer four letting rooms for guests who are visiting this lovely area. What would you do with this pub to make it a success?

Beautiful Village Location

This charming pub is nestled in the quaint village of Stogursey, home to a close-knit community of 877 residents and conveniently situated just 12 miles from Taunton, a popular Somerset tourist destination with picturesque villages and breath-taking beaches. The immediate demographic within the village is closely-knit, while a mature and diverse audience of nearly 22,000 adults resides within a 20-minute drive, offering a rich pool of potential patrons. In the village, this pub stands alone without direct competitors, making it a beacon of social gathering, offering a unique experience that combines the warmth of a village local with the allure of nearby landmarks and the broader appeal of Bridgwater and its beautiful surroundings.

Great Potential!

This pub is a fantastic investment opportunity with its unique position as the sole village pub in Stogursey, poised to fulfil the high expectations of the locals, offering both the charm of a traditional pub and modern amenities. The ideal operator for this gem would be one capable of curating a vibrant, community-focused pub, rich in events, and adept at leveraging resources like Sky Sports, local charities, and the influx of tourists visiting the area. Moreover, the efficient management of four letting bedrooms will be vital to maximize occupancy and further boost revenue, solidifying this pub's potential as a standout destination in the area.

The Offer:

The Greyhound Inn is available on our investment tenancy agreement. Click here for more information on this agreement.

When refurbished, the Greyhound will appeal to:

  • Families looking for somewhere local to enjoy a quality, good value meal.
  • Couples & groups of friends looking for a quality venue to watch the sport.
  • Tourists & contractors looking for comfortable accommodation.

When refurbished, the Greyhound will offer:

  • A full Heineken range drink offer
  • A menu full of great pub classics
  • A simple coffee offer
  • Live sports through Sky Sports.
  • Competitive socialising through pool & darts

We’re always open to new ideas, what would you do to drive trade?

If you’ve benefited from running or owning a pub business, we’d love to hear what experience you can bring.

The right operator for the Greyhound Inn will have extensive experience in a similar community led hospitality businesses. They will have a clear vision for their food & drinks menu, marketing strategy and sports offer and can create a memorable experience for their customers.

If this sounds like the incredible pub opportunity you’ve been waiting for, apply today and tell us what you can bring to this pubs next chapter…


  • Refurbishment Planned

  • Investment Tenancy

  • Catering Kitchen

  • Pub Games

  • Outdoor Trade

  • Letting Rooms

  • Private Accommodation

Trading Area & Facilities

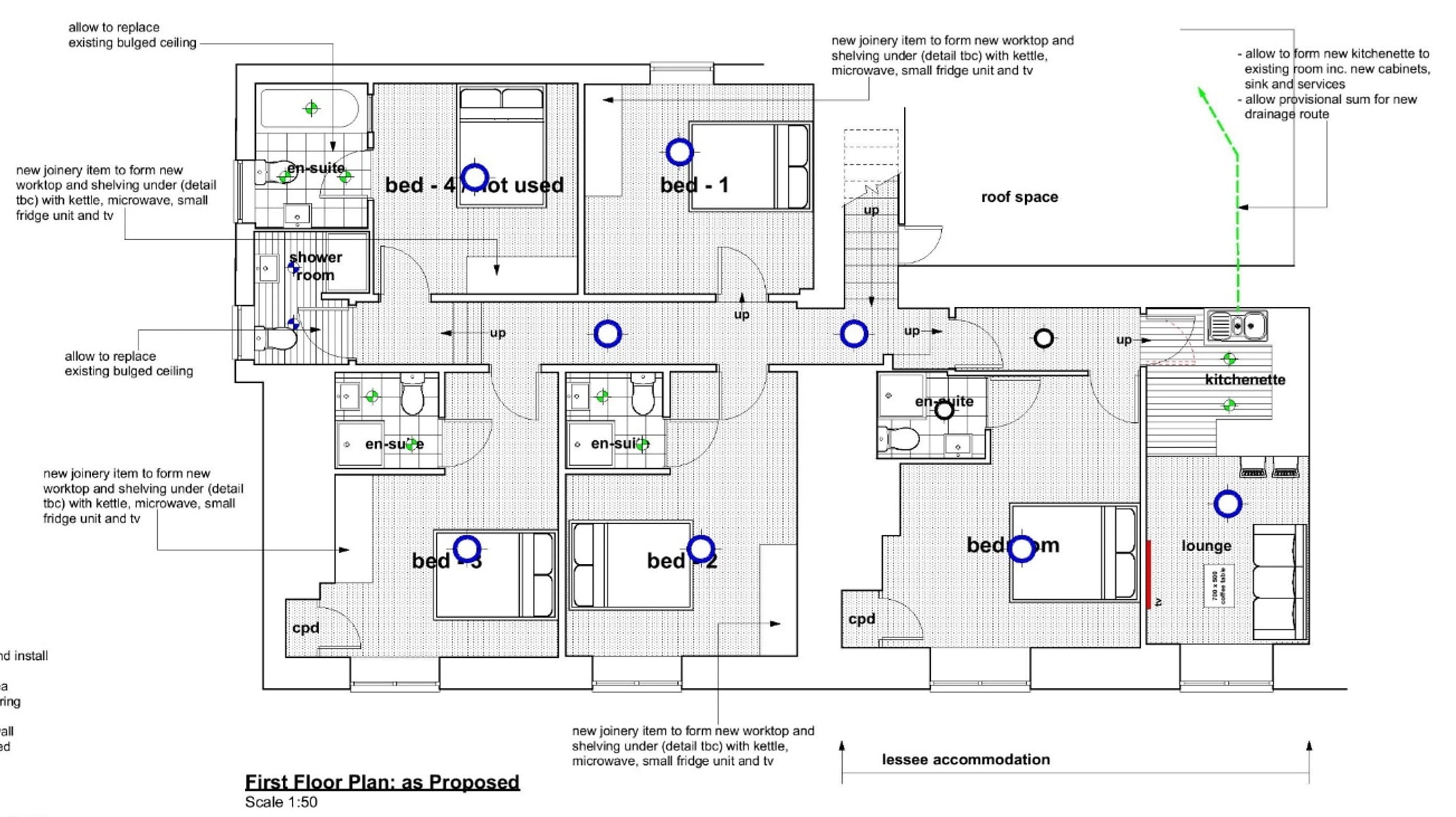
The Greyhound Inn will be undergoing a refurbishment which will cover the interior and exterior of the pub.

A full list of works and pub floor plan can be found in the ‘refurbishment details’ in the downloads.

The pubs trading area and facilities post refurbishment will be:

  • Main trading area with bar
  • Separate lounge / dining area
  • Separate Sports area
  • 44 dinning and 26 drinking internal covers.
  • 20 external covers
  • Catering kitchen
  • SmartDispense
  • Four letting rooms.
  • Outside trading area with garden
  • Car park

Applicants should be aware that all refurbishments are subject to final board approval which will be determined as part of the leasing process.

Where a significant investment is made in a pub by Star Pubs & Bars, an "Investment Exemption" will be required. The exemption means that the option of a Market Rent Option lease won't be available at rent review for a period of up to seven years for this site, as per The Pub Code (2016).

Private Accommodation

Private accommodation consists of a bedroom/lounge and kitchenette open plan flat. 

Pub Financials Icon

With our 5 Star Promise, the rent at the start of your agreement is fixed until the end of its initial term.


Indicative entry costs

£29,871

Annual
Estimated Annual Turnover
£307,057
Annual Rent
£20,063
Entry Costs
Deposit
£5,015
Estimated Fixtures & Fittings Value
£13,356
Stock Valuation
£8,000
Working Capital Required
£3,500
The above figures are provided as a guide only and will be finalised as part of the commercial agreement. All figures quoted are exclusive of VAT.

Estimated Working Capital is an estimate of key start-up costs such as professional fees, training fee, premises license fee, F&F valuation fee & till floats. There will be additional ongoing charges payable during the term of the agreement such as property maintenance, repairs fund, SmartDispense. These costs will be outlined prior to completing a business plan and finalised at Heads of Terms.

The calculation of the Estimated Minimum Ingoing Costs assumes a minimum deposit of 1 month's rent and that fixtures and fittings (F&F) are rented. The subsequent deposit build up and F&F rental costs should be included in your financial assumptions in your business plan. Note that on FRI and Investment Tenancy Agreements deposits will always be 3 month's rent in advance and fixtures and fittings (F&F) must always be purchased. A deposit of 6 month's rent will be required for operators trading under a Limited Company with no Guarantors. In order to ensure a successful start-up, all applicants must have a minimum £10,000 un-borrowed funds.

Location:

1, Lime Street, Bridgwater, TA5 1QR

Google map location image of Greyhound Inn Bridgwater
[]

Blue map location pin Selected pub

Dark blue map location pinOther pubs

Investment Showcase Icon

See how we've done this before

Investment Showcase

View Case Studies